Budynek AE2

Skowronkowa 23 to osiedle składające się z 18 segmentów w zabudowie szeregowej. Każdy bezczynszowy segment posiada własny ogródek oraz garaż w bryle i miejsce parkingowe zewnętrzne.

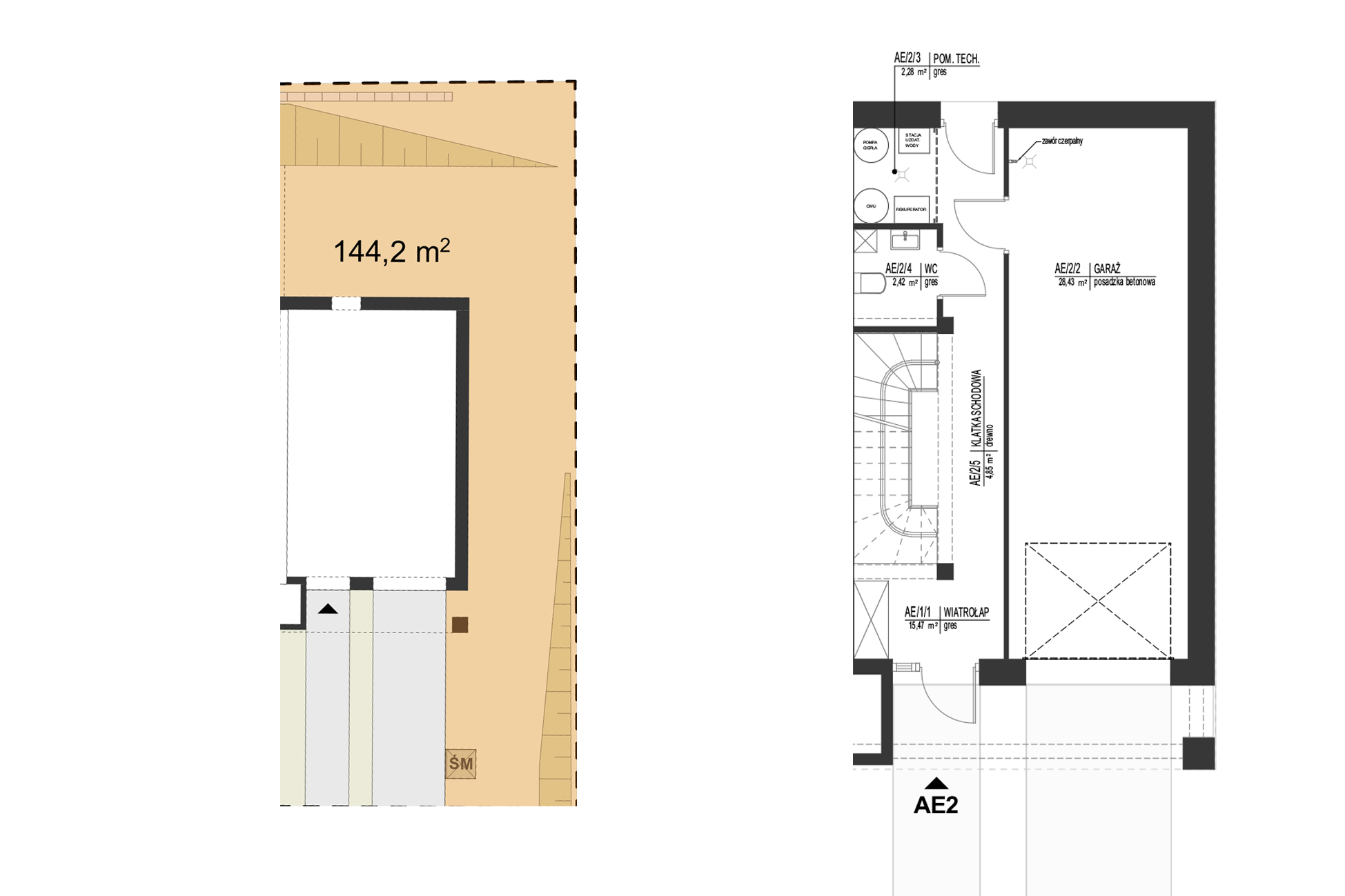
Parter oferowanego bezczynszowego segmentu to garaż 28,43 m2, pomieszczenie gospodarcze, WC, wiatrołap.
Piętro to część dzienna składająca się z salonu z dużą jadalnią i kuchnią na powierzchni 47,04 m2 z wyjściem do ogródka 144,2 m2, WC i pralnią.
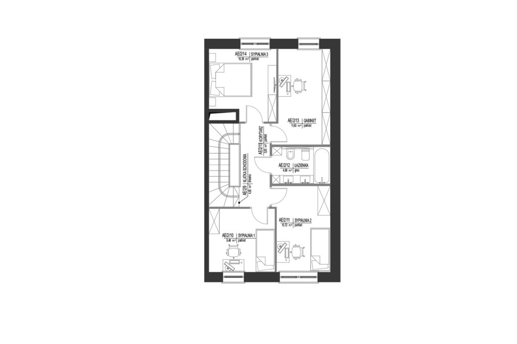
Drugie Piętro to strefa wypoczynkowa z trzema sypialniami 10,72m2, 10,28m2, 9,48m2, gabinetem 11,63m2 i łazienką.
Lokal ma powierzchnię całkowitą 164,58m2 i użytkową 126,45m2, całkowita powierzchnia działki 248,62m2.

Skowronkowa 23 to idealne miejsce z szybkim dojazdem do centrum Lublina w okolicy pobliskiego lasu, gdzie można złapać oddech w naturze.

Dlaczego Skowronkowa 23?

  • ogrzewanie podłogowe w całym budynku wraz z garażem,
  • rekuperacja i pompa ciepła,
  • przystosowanie budynku pod montaż instalacji fotowoltaicznej,
  • możliwość instalacji stacji uzdatniania wody,
  • przygotowanie okablowania pod instalację alarmową,
  • przystosowanie budynku pod dostęp internetu światłowodowego przez kanalizację kablową zewnętrzną,
  • okna trzyszybowe w kolorze antracytowym na zewnątrz, w kolorze białym wewnątrz,
  • drzwi wejściowe antracyt z pochwytami z doświetlem bocznym,
  • automatyczna brama wjazdowa do garażu,
  • wysokość pomieszczeń 2,55m,
  • kostka brukowa na wjazdach, podjazdach garażowych i opasce wokół budynku,
  • ogrodzenie od strony frontowej całości posesji murowane ze szlabanem,
  • ogrodzenie każdego ogrodu boczne z paneli lub żywopłot, ogród w odrębnej własności,
  • teren zostanie wykończony szatą roślinną,
  • droga dojazdowa utwardzona, wewnętrzna, udziały,
  • brak opłaty 2% PCC,
  • instalacje: wodociągowa, kanalizacja sanitarna i deszczowa, elektryczna.

Zalety:

  • 6,4km do centrum,
  • przystanek 650m,
  • sklep Biedronka, siłownia, apteka 0,5km,
  • szkoła podstawowa 0,5km,
  • las 200m,
  • Muzeum Wsi Lubelskiej 1,2km,
  • droga ekspresowa 2,3km.

Początek budowy – Listopad 2024r.
Planowane zakończenie – Grudzień 2025r./Styczeń 2026r.

Cena:

1 199 000

 PLN

Cena za metr:
164,58

Obliczam...

 PLN/m2

Wybierz inny dom

Nazwa lokalu
Nazwa
Metraż działki
Działka
Metraż lokalu
Lokal
Status
Karta mieszkania
Cena
Scroll to Top